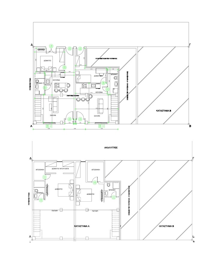
Продається Kвартира площею 85 кв.м в АфінахКвартира розташована на 2 рівнях. Перший поверх складається з однієї спальної кімнативітальні з кухнею, однієї душової кімнати.
Semi-first floor складається з однієї спальної кімнатиоднієї душової кімнати, однієї комори.
У об'єкта передбачені кондиціонер. Об'єкт пропонує красивий вид на місто.
Вищезгадана інформація ґрунтується виключно на інформації, наданій власником нерухомості компанії Grekodom, в якій можуть бути неточності або зміни, пов'язані з вартістю нерухомості з боку власника.
ВІДПОВІДНО ДО ЗАКОНУ 4072/2012, ЩОБ ДИВИТИСЯ ОБ'ЄКТИ НЕРУХОМОСТІ, НЕОБХІДНО НАДАТИ ПАСПОРТНІ ДАНІ ТА ПОДАТКОВИЙ НОМЕР, ЯКІ МИ ПОВИННІ ВКАЗАТИ В ДОГОВОРІ ПРО НАДАННЯ ПОСЕРЕДНИЦЬКИХ ПОСЛУГ.
Вказівка розташування об'єкта на мапі показує неточне розташування власності, а загальну область, в якій вона розташована. Для отримання додаткової інформації - зв'яжіться з нами.





























